Home > Renovaties / Restauraties / Klassiekere projecten > Lepac nv, Essen

Lepac nv, Essen, juli 2025

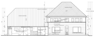
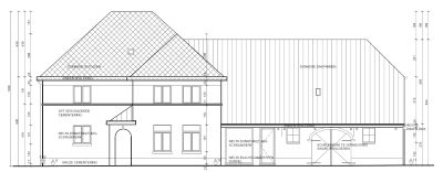
Verbouwing woning

Renovaties / Restauraties / Klassiekere projecten

Renovaties / Restauraties / Klassiekere projecten

Renovaties / Restauraties / Klassiekere projecten

Renovaties / Restauraties / Klassiekere projecten

Renovaties / Restauraties / Klassiekere projecten

Renovaties / Restauraties / Klassiekere projecten

Renovaties / Restauraties / Klassiekere projecten

Renovaties / Restauraties / Klassiekere projecten

Renovaties / Restauraties / Klassiekere projecten

Renovaties / Restauraties / Klassiekere projecten

Renovaties / Restauraties / Klassiekere projecten


↑ naar boven ↑
Deze website gebruikt geen cookies. koenmichielsen.be - webdesign Essen