Home > Renovaties / Restauraties / Klassiekere projecten > Vandekeybus M., Kalmthout

Vandekeybus M., Kalmthout, april 2025

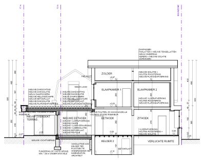
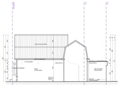
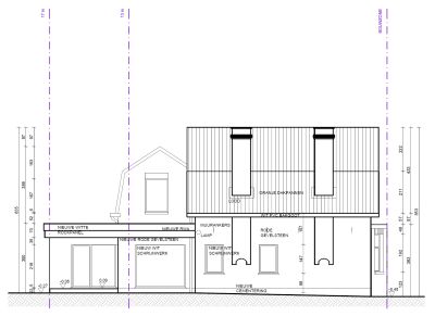
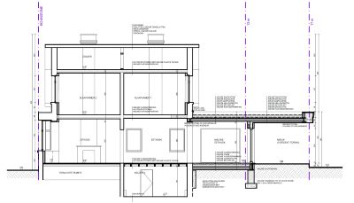
Verbouwing woning

Renovaties / Restauraties / Klassiekere projecten

Renovaties / Restauraties / Klassiekere projecten

Renovaties / Restauraties / Klassiekere projecten

Renovaties / Restauraties / Klassiekere projecten

Renovaties / Restauraties / Klassiekere projecten

Renovaties / Restauraties / Klassiekere projecten

Renovaties / Restauraties / Klassiekere projecten

Renovaties / Restauraties / Klassiekere projecten

Renovaties / Restauraties / Klassiekere projecten

Renovaties / Restauraties / Klassiekere projecten

Renovaties / Restauraties / Klassiekere projecten

Renovaties / Restauraties / Klassiekere projecten


↑ naar boven ↑
Deze website gebruikt geen cookies. koenmichielsen.be - webdesign Essen