Architectenbureau Bart VAN LOON bvba
Architectuur - Veiligheidscoördinatie ( - EPB Verslaggeving)
Home
Nieuw
Architectuur
Eéngezinswoningen
Appartementen / Meergezinswoningen / Woningen met handelsruimten
Projecten allerlei
Verbouwingen
Renovaties / Restauraties / Klassiekere projecten
Interieur
Omgevingswerken / Buitenaanleg
Bijgebouwen; tuinhuis, tuinberging, overdekt terras, carport, poolhouse, ...
Landbouw
Industrie / KMO
Woningen in PRUP / weekendhuizen
Veiligheid
Bureau
Curriculum vitae
Milieucoördinatie
Wedstrijden
Publicaties
Jobaanbieding
Contact
Home
>
Renovaties / Restauraties / Klassiekere projecten
>
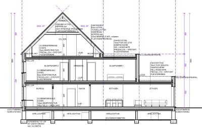
Goffin J, Kalmthout
Goffin J, Kalmthout, maart 2021
Half-open bebouwing
↑
naar boven
↑
Deze website gebruikt geen cookies.
koenmichielsen.be - webdesign Essen